
2026
Palomino - 1803 2026 - Real lite
48 711,00 $
42 996,00 $
Rabais de : 5 715,00 $


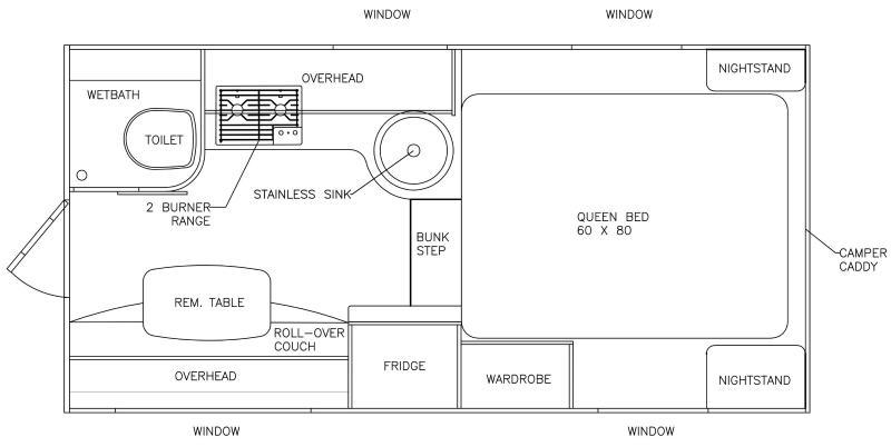
Aperçu
Marque : Palomino
Modèle : 1803
NOTE : Les informations techniques relatives aux véhicules sont fournies à titre indicatif seulement. Nous nous dégageons de toute responsabilité quant à l'exactitude des informations affichées. Pour des précisions sur les spécificités techniques d'un véhicule, veuillez nous appeler au: 450-434-6653 ou sans frais 1-877-433-1014.
Partager ce modèle
Spécifications
# Stock : | BM6055 |
Année : | 2026 |
- - Panneaux solaire
- - Réfrigérateur 12 Volts
- - Banquette
- - Lit queen