Adventurer - 86FB 2024 - Adventurer
2024
*Images pour référence seulement, le produit actuel peut différer.
2024
Adventurer - 86FB 2024 - Adventurer
78 795,00 $
68 977,00 $
Rabais de : 9 818,00 $



Aperçu
Marque : Adventurer
Modèle : 86FB
NOTE : Les informations techniques relatives aux véhicules sont fournies à titre indicatif seulement. Nous nous dégageons de toute responsabilité quant à l'exactitude des informations affichées. Pour des précisions sur les spécificités techniques d'un véhicule, veuillez nous appeler au: 450-434-6653 ou sans frais 1-877-433-1014.
Partager ce modèle
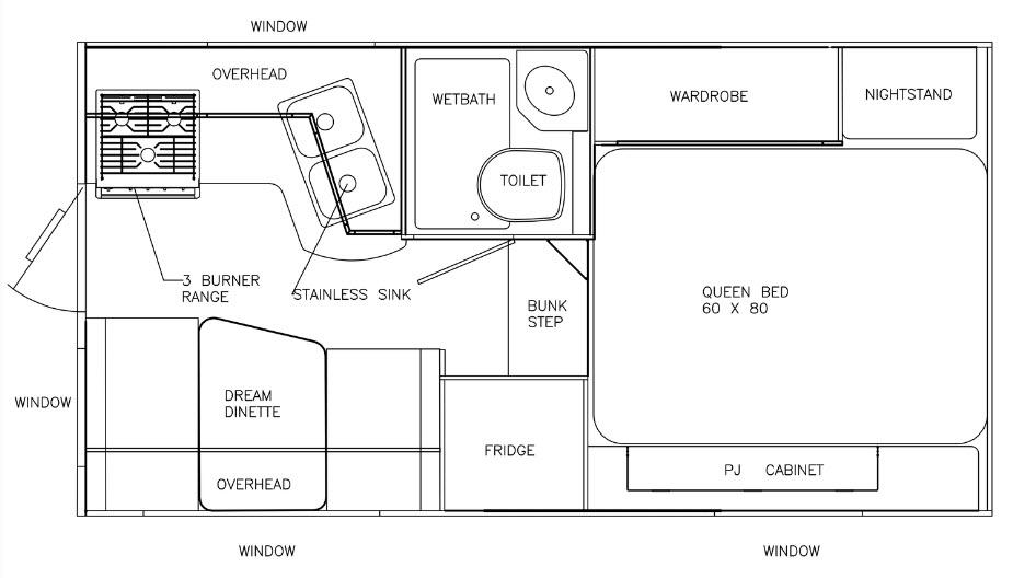
Spécifications
# Stock : | BSP60095 |
Année : | 2024 |
- - Air climatisé 13500BTU
- - Panneaux solaire
- - Banquette
- - Télévision
- - Marche-pied
- - Lit queen
- - Chauffe-eau 6 gallons
- - Réfrigérateur gaz/électrique
- - Boite Courte et Longue
- - Isolation 4 saisons
- - Auvent de côté
- - Jacks électriques
- - Radio bluetooth
- - Fenêtres «Thermos»
- - Auvent arrière
- - Poêle 3 ronds